工廠地址:深圳市寶安區福永街道鳳凰興業一路華倫科技園21棟2樓
楊 總:13828709518
雷 總:13923457816
郵箱:yangdekai@hctlcd.com
QQ:417594796
Products Center
Contact Us
工廠地址:深圳市寶安區福永街道鳳凰興業一路華倫科技園21棟2樓
楊 總:13828709518
雷 總:13923457816
郵箱:yangdekai@hctlcd.com
QQ:417594796
| 型號 | H070IWS50I2501-CT25-RTD2660-1.0F |
| 尺寸 | 7 inch |
| 分辨率 | 1024×600 |
| 接口 | 50PIN HDMI USB |
| 外觀尺寸 | 164.9 (寬) × 100 (高) ×13.6 mm |
| 顯示尺寸 | 154.21 (寬) × 85.92 (高) |
| 亮度 | 210 nits |
| 視角 | ALL |
| 工作溫度 | -20 ~ 70 °C |
| 觸摸屏 | 帶電容觸摸 |
接口定義:




產品參數:

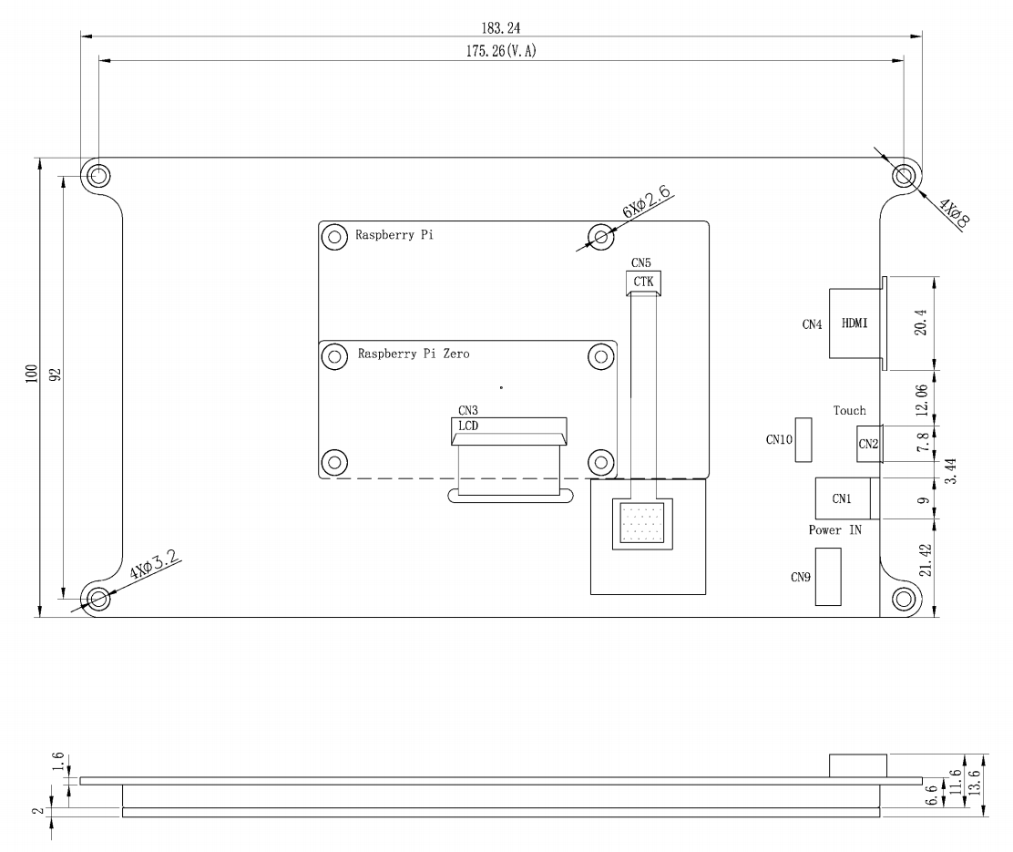
產品圖紙:
